Casa Buceo
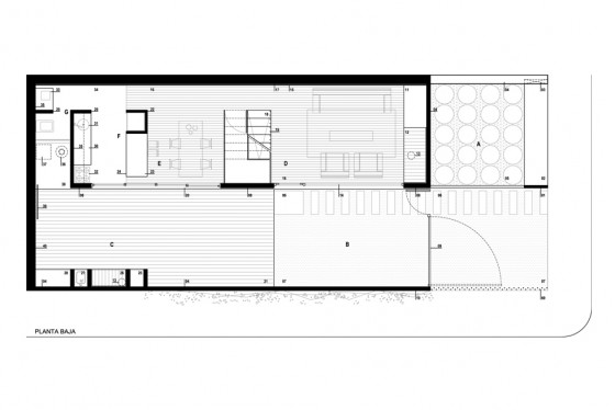
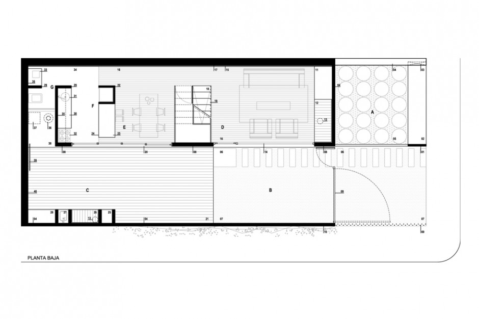
La vivienda se implanta en un terreno, de 7.50 x 17.50 metros, con la fachada más larga hacia el norte. El proyecto se estructura en base a dos bandas bien diferenciadas, una patio, la otra vivienda, una blanda y ausente y otra dura y presente. Esto genera una vivienda que se abre al patio y al norte, ya que el patio se coloca por delante, dejando que la casa absorba todo el sol y generando privacidad a partir de un muro elevado que define el patio al frente.
Este patio se plantea como extensión de la vivienda y también como extensión visual, es decir los límites no son el plano de fachada sino que es el muro exterior de bloque, de esta forma el espacio interior adquiere un ancho mayor, un espacio ¨doble¨, al que se abre toda la planta baja.
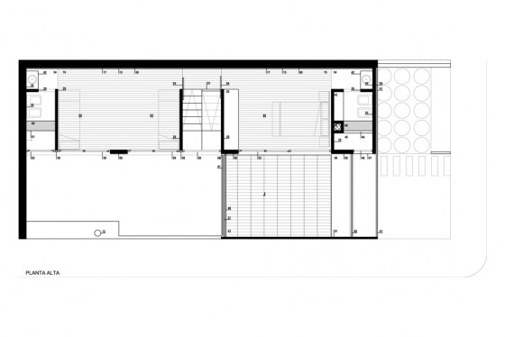
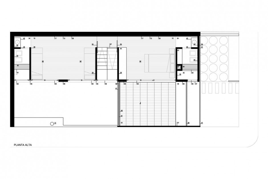
Esta planta baja contiene al estar, la escalera, el comedor, la cocina, el toilette y un lavadero, en tanto en la planta alta se encuentran los dos dormitorios de los niños con su baño, a un lado de la escalera y al otro, el dormitorio principal en suite.
El dormitorio principal tiene su propio espacio exterior, que es una terraza/patio que cuelga sobre el patio de abajo por un sistema de tensores, de esta forma la planta alta cuando cruza al límite blando se transforma en esta terraza, reforzando la idea del manejo de las dos bandas, un patio colgando sobre el otro.
A nivel de materiales, se manejan materialidades exploradas en el parador del Salto del Penitente (Lavalleja), materialidades que intentan ser terminaciones finales, es así que usamos el hormigón visto(liso y rugoso), el bloque, las maderas, el vidrio. Materiales que no requieran aplicación de terminaciones por encima del material, logrando así menor mantenimiento, asumiendo el envejecimiento de los materiales como una textura posible, usarlo a favor. Como así también desde un punto de vista económico reduciendo costos y subcontratos.
La estética de la casa plantea el manejo de recursos formales contemporáneos, formas abstractas con materialidades naturales, sin acabado, generando texturas que surgen de los propios materiales o de su manipulación.
Abstracción pero al servicio del espacio, entendiendo la arquitectura como capaz de moldear la espacialidad, la luz, las fugas entre diferentes espacios, sentir ¨subir¨ la casa, sentirla ¨salir¨, lograr que los espacios se muevan por la casa, apelando a sus formas más primarias.
Explorar las espacialidades, los límites construídos, disolver los límites entre el adentro y el afuera.
















