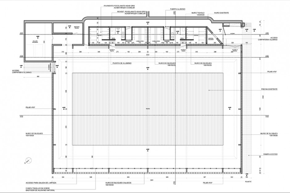
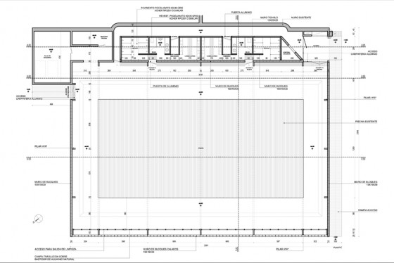
Piscina Municipal Rivera
Realización de vestuarios y cerramiento global de piscina existente Plaza Deportes Rivera