Hotel Casino Salto
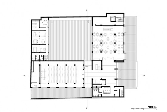
El programa
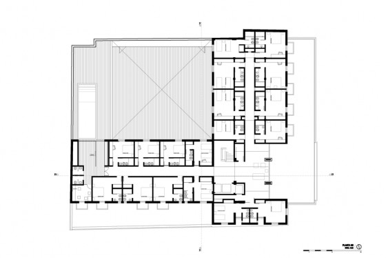
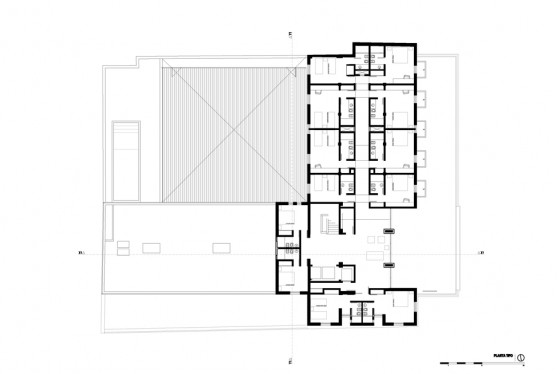
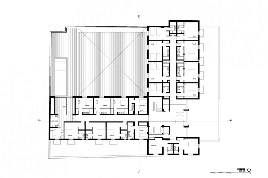
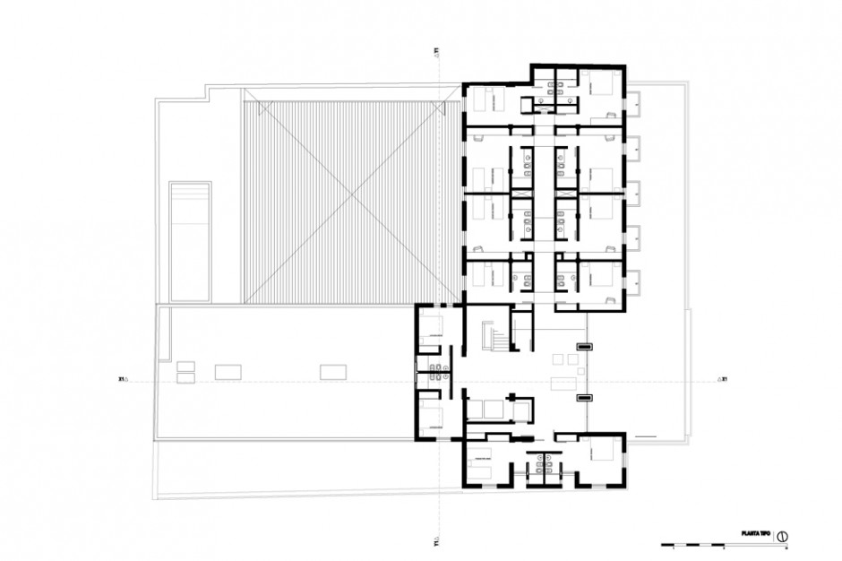
Hotel
56 habitaciones
1 habitación VIP
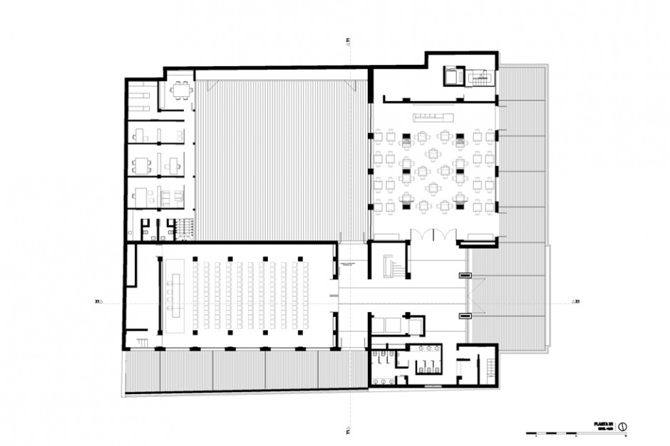
Sala de Conferencias
Desayunador / Buffet
Cafetería
Piscina – Gym
Casino
Sala de Slots
Back Casino
El sitio
La ciudad de Salto está ubicada unos 500 Kms. al noroeste de la ciudad de Montevideo, en el litoral del país y sobre la ribera del río Uruguay, en la frontera con Argentina. Ciudad capital del departamento de Salto, uno de los 19 departamentos en que está políticamente organizado el país. Está habitado por 123.000 personas, de las cuales 100.000 viven en la ciudad capital.
Alejado de la capital nacional y del principal puerto de ultramar, Salto ha tenido gran energía para desarrollarse por si mismo. Su capital es la ciudad más poblada del interior; su territorio es capaz de autoabastecerse de alimentos, de servicios sanitarios de primer nivel, de centros educativos (tiene tres universidades), de salir al mundo con productos naturales y de generar la Capital del Turismo Termal del Uruguay. En su zona de influencia se encuentran importantes centros termales, tanto estatales como privados, que han determinado un desarrollo fuerte del turismo.
El proyecto
El proyecto del Hotel Casino Salto, plantea su intervención en un hotel existente, de fuerte carácter arquitectónico y emblemático de la ciudad, con frente a una de las principales plazas del centro de la ciudad.
La intervención propone remodelar el hotel existente adecuándolo a las exigencias de un complejo de cuatro estrellas, ampliando las habitaciones existentes, incorporando algunas nuevas y recuperando viejas espacialidades.
El hotel que ocupaba el padrón en forma de L, mantiene su carácter original, recuperando su impronta. Proponemos la creación de un nuevo piso de habitaciones, generando un nuevo remate al edificio.
El viejo patio interior, antes ocupado por cocina y dependencias de servicio, se libera, ingresando la obra nueva de las áreas destinadas a la sala de slots, y oficinas y servicios propios del Casino.
Proponemos la recuperación de los amplios espacios del viejo Gran Hotel Salto, disponiendo la Sala de Conferencias en el ala norte, sobre la calle Uruguay, y la rejerarquización de los espacios destinados a Cafetería y Desayunador en la Planta Baja y Primer Nivel, hacia la Plaza Gral. Artigas.




























