Embajada de Venezuela / Centro Cultural

El proyecto surge de resolver las dos entidades que conviven en este proyecto, la Embajada y Consulado por otro, el Centro Cultural y de Documentación por otro.
Las premisas del proyecto surgen de la yuxtaposición de estos doa ámbitos.
Embajada
Se deja intacto el edificio patrimonial, priotegiendo su arquitectura, dejando el edificio tal cual es. Se adaptan las necesidades programáticas a la estructura edilicia preexistente, resolviendo las nuevas interconecciones e interrelaciones.
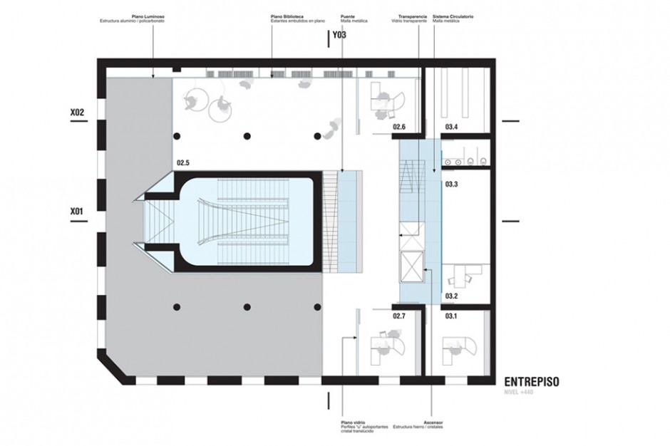
Centro Cultural y de Documentación
La masividad del edificio se desmaterializa, re-inventando un espacio de alturas libres, generoso, permeable; donde la luz natural y artificial están presentes, generando un ámbito que invita a recorrerlo, a practicarlo, a vivirlo.
Consideramos el espacio como un lugar activo, emisor, captor del público pasante.