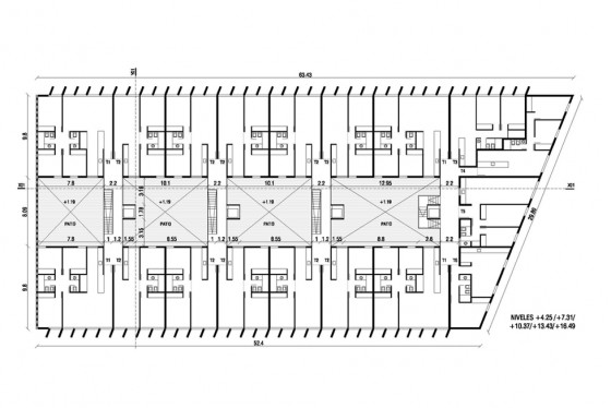
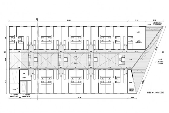
Sevilla / Campo de los Mártires
Proyecto de Vivienda Colectiva desarrollado para un Concurso-Licitación en Sevilla,
en asociación con el estudio Mediomundo arquitectos.
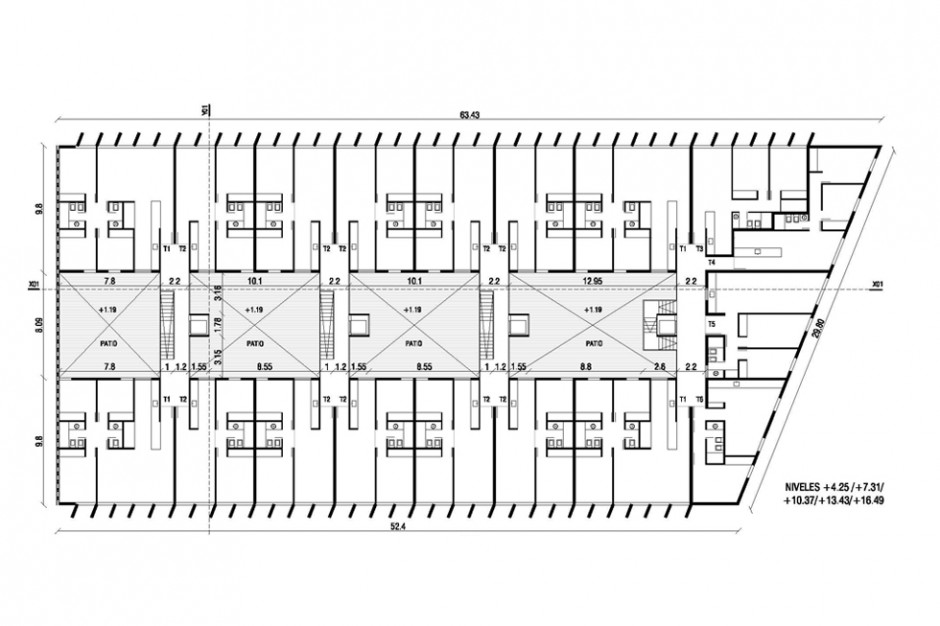
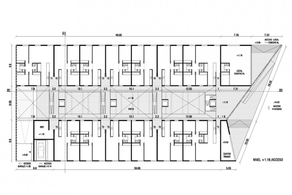
Sevilla / Campo de los Mártires
Proyecto de Vivienda Colectiva desarrollado para un Concurso-Licitación en Sevilla,
en asociación con el estudio Mediomundo arquitectos.