Concurso Utec_Frigorífico Anglo

Nuevo ITR
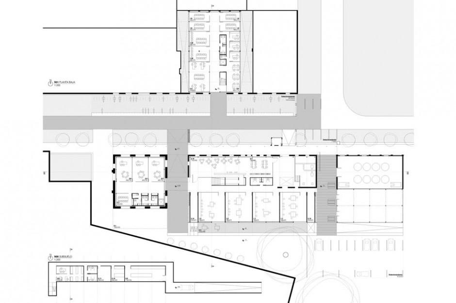
La intervención incorpora una relación con la escala macro, asociada al sistema de agregación de cubiertas inclinadas livianas como una secuencia reconocible e identitaria, en lo que refiere tanto al perfil edilicio, como a la eficiencia y multiplicidad de espacios que esta cobija.La nueva pauta en techo liviano entiende a la trama existente como un dato desde el cual construir la nueva forma, asumiendo mayor porosidad y dando identidad al incorporar el blanco como color de las chapas, tanto opacas como traslúcidas.
Esta nueva pieza se abstrae y construye sus paramentos verticales en este material blanco, ligero. Su condición permeable permite a su vez, proyectar al exterior la actividad del interior de los diferentes programas.
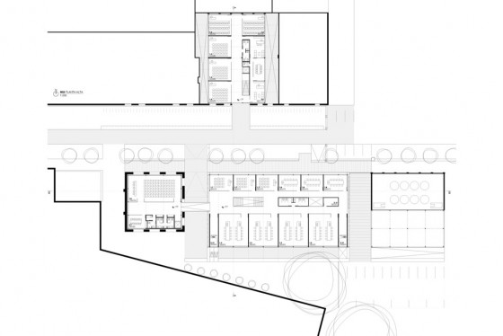
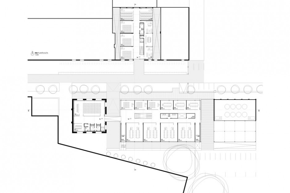
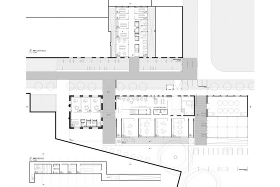
El tiempo presente se refleja en la nueva pieza que articulando el perfil de dos aguas aloja un sistema regular de laboratorios y aulas generales, incorpora en planta baja programas públicos en secuencia continua con la galería y el muro existente del ex acceso de personal.
Espacios de estar y reunión dotan a la nueva pieza de una vida propia, al tiempo que permiten evidenciar una identidad renovada como motor de transformación a futuro, la pieza fundante de la UTEC dentro del ANGLO.
Un nuevo techo, de la familia de todos los techos del ANGLO, uno más, al revés y blanco.