Casa Schandy

01. Memoria:
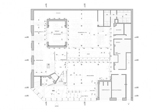
Generar un acceso
Generar una nueva imagen
Amplificar un interior, en relación con su exterior.
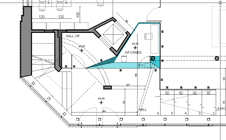
La planta baja se abre a la calle y genera una nueva puerta horizontal, amplia, larga.
El edificio ahora se abre a nivel del peatón.
Arriba se corona, generando la nueva presencia, remate-cartel, que retoma la alineación con el vecino.
2 acciones, abrir y coronar.

02. La operación
Para generar este acceso largo, se decide cortar el muro portante de una de las fachadas.
La calle Rincón es la más activa, vinculada a toda la zona bancaria, y donde están numerosos edificios públicos de interés en la Ciudad Vieja.
Sobre este muro de descarga es que decidimos operar.
El ancho del muro, entre 50-70 cm hace que la descarga deba ser sobre un par de pilares en hilera, para poder contener la masa del muro.

03. Proceso / Etapas
03.01
Realizar dados de recimentación bajo viga de ochava y en sectores exteriores indicados de la fachada Rincón.
03.02
Colocación de los 2 PNI 22 inferiores del lado exterior de la fachada en todo el largo de la misma y en ochava, verificando su perfecto acuñamiento inferior a la cimentación y a la viga existente según corresponda.
Los mismos deberán ya posicionarse soldados entre si y con las cartelas exteriores soldadas centradas en cada ubicación de pilar metálico.
03.03
Colocación de pilares metálicos exteriores centrados en alas de perfiles y con la orientación indicada (lado de 12cm paralelo a fachada).
03.04
Colocación de los 2 PNI 22 superiores del lado exterior de la fachada en todo el largo de la misma y en ochava, verificando su perfecto acuñamiento al tramo de muro superior.
Los mismos deberán ya posicionarse soldados entre si y con las cartelas exteriores soldadas centradas en cada ubicación de pilar metálico.
03.05
Repetir paso 2 al 4 para el lado interior del muro.
03.06
Luego de transcurridos los días suficientes para el fraguado del acuñamiento inferior y superior de los perfiles, demoler la mapostería interior por tramos, centrados en pilares metálicos y de forma alternada, de manera de ir colocando los perfiles PNI 22 transversales de arriostramiento inferior y superior entre perfiles longitudinales.