Movistar Punta del Este
Proyecto Básico
Gualano+Gualano: arquitectos
Proyecto Ejecutivo
Dirección de obra
Oficina de Arquitectura Movistar
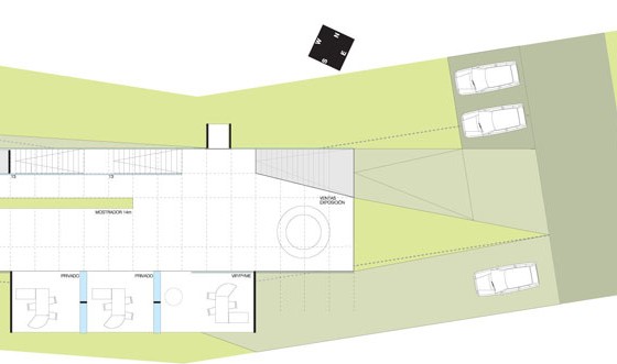
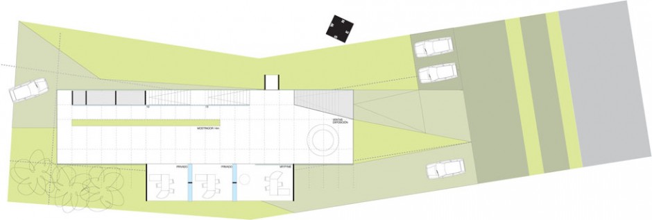
Programa
Oficinas Centrales Movistar Punta del Este
Atención al público
Oficinas
Showroom
El encargo de este proyecto planteaba un desafío para el estudio, ya que nos ofrecía una nueva modalidad de trabajo.
Desarrollar un proyecto, que iba a ser ejecutado por otra oficina, pero que se iba a construir.
A su vez se emparentaba también con un trabajo de identidad corporativa, pero arquitectónica, donde ciertos datos de valor comunicacional eran importantes ( que tipo de edificio, su carácter pregnante, edificio símbolo, edificio gráfico)
Este punto de partida, genera las primeras decisiones, tanto a nivel del lugar en que se implanta el edificio, como la materialidad con la que íbamos a trabajar.
A nivel programático, el edificio plantea que los 3 sectores sean cada uno, un piso entero.
Cada plataforma, tiene su programa, y esto organiza espacialmente la propuesta global.
El edificio se sobreeleva, generando debajo el estacionamiento, un primer nivel de atención al público, un segundo nivel de oficinas y sus servicios asociados y un último y tercer nivel donde se ubica el showroom y una terraza al exterior.
El proyecto se genera a partir del sistema estructural, donde una estructura reticulada metálica, sostiene al edificio- que se apoya en 2 puntos (atrás y adelante) a modo de puente-, salvando una luz de más de 20m.
Un revestimiento de u-glass (perfil de vidrio colado) conforma la membrana externa. Un material que nos ofrecía un grado de transparencia controlada y nos permitía generar un edificio luminoso y extraño.
En suma, un edificio-objeto, un edificio-marca.


















