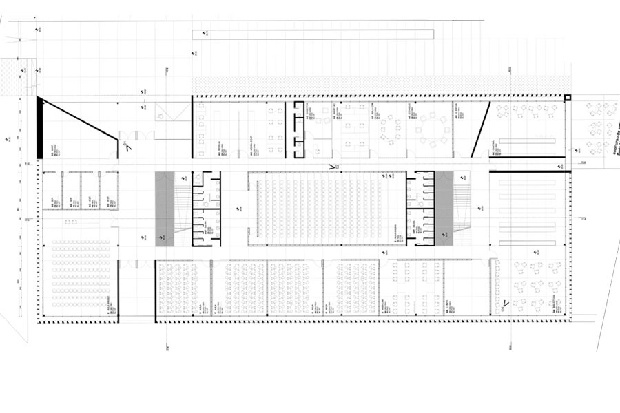
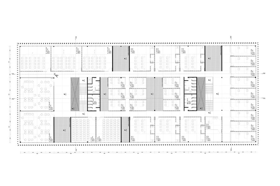
Concurso Cure
Límites, bordes fricciones.
Límites con espesor.
En el fluir, el edificio se encuentra, se pierde, se fuga.
El fluir es el encuentro, el movimiento es el espacio. Es movimiento, es intercambio, es crecimiento, es sistema abierto, es un espacio abierto.
La Universidad en un espacio democrático, plural, contemporáneo.
En constante movimiento.



















