Gerardo Caballero / 18-19 OCT / Montevideo, Farq, Taller Scheps
Escuela de Ingeniería, UNR
Rosario, Argentina
Concurso Nacional de Arquitectura / Primer Premio (1999 – 2005)
1999 Concurso Primer Premio
Arq Gerardo Caballero
Arq. Mario Antonio Antelo
Arq. Maite Fernández
Gerardo Bordi
Ramón Herrera
2005 Proyecto Ejecutivo
MEMORIA
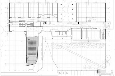
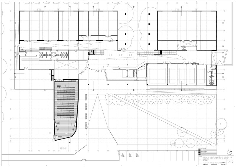
El proyecto se genera a partir de una serie de decisiones tendientes a vincular la nueva Escuela de Ingeniería con los edificios existentes en la Ciudad Universitaria de Rosario, para que ésta se sume al conjunto de una manera natural.
Las generosas dimensiones del terreno asignado propician la idea de un edificio en sólo dos niveles, facilitando su organización y logrando un ahorro en circulaciones que al unificarse permiten dimensiones mayores para convertirse así en ámbitos de encuentro dentro de la Escuela.
La presencia en el lugar de siete magníficos ejemplares de Palos Borrachos alentó la idea de organizar el edificio en torno a ellos creando un patio exterior cerrado que servirá de recreación tanto para profesores como alumnos.
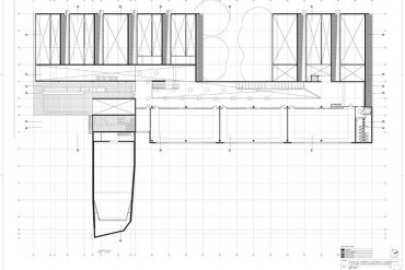
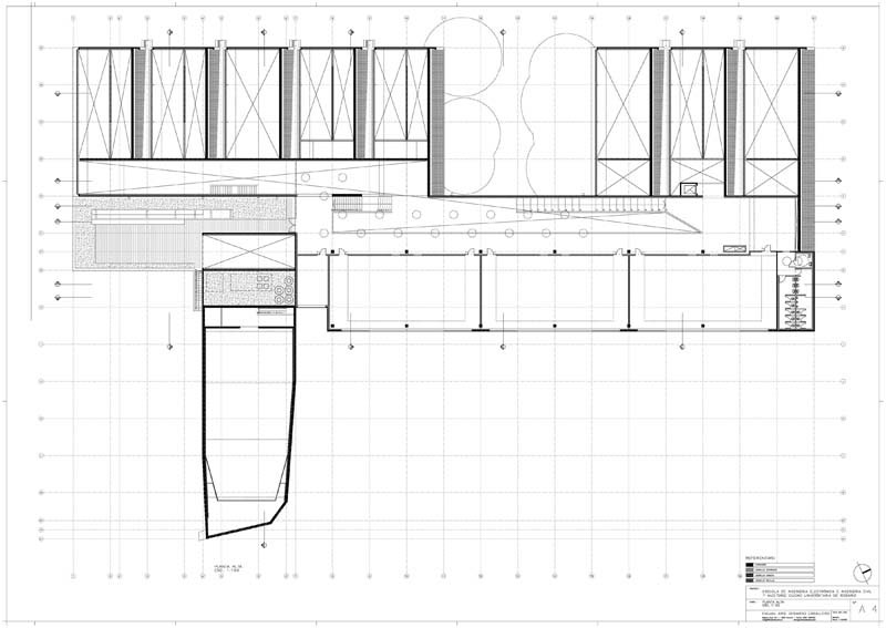
Los departamentos de investigación adoptan una sección tipo “shed” para proveerlos de luz natural del sur y crear unos espacios de aspecto fabril donde poder “generar” conocimiento. La planta en L del edificio se completa con la presencia del IMAE con el cual conforma una plaza exterior.
La posición del auditorio sirve para delimitar dicho espacio al tiempo que por ser el Auditorio de la Ciudad Universitaria se ubica sobre el eje principal del campus, hacia la calle Riobamba el edificio reduce su altura para adaptarse a la escala de la calle.
El edificio esta concebido con una estructura de hormigón y terminaciones de hormigón visto en su exterior.













